Grand Union - Affinity House
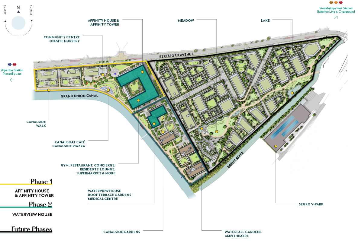
From Q4 2022, Affinity House offers a collection of beautiful waterside homes with a range of lifestyle facilities on your doorstep. Relax in 14 acres of open space including landscaped gardens, riverside meadows & walkways and enjoy canalside living with easy access to the City and West End. Homes completing from Autumn 2022.
Features
- Beautiful 1 and 3 bedroom homes available
- Contemporary interiors
- Stunning landscaped gardens
- A new waterside destination to live, work and connect
- Canalside location next to the piazza
- Easy access to the City and West End
Developer
Berkeley St George
Location
London
Completion
2022
Ready to move in
Type
New Build
Address
Wembley, London, HA0 1NW
Station
Stonebridge Park Tube
Exclusive pitchbook Document
Our exclusive Pitchbook document outlines the key points of the project and investment potential so you get what you need at a glance.
Get AccessEXCLUSIVE 3D INTERACTIVE
Get access to the property overview and apartment selector to make choosing your next investment easier. Please sign in to view.
Get AccessListing Videos
Other Listings
Exclusive access to the latest and greatest property investment opportunities. Search the latest residential properties for sale.
01
Listings
Browse through our listings on the latest properties for sale.
02
Resources
We offer a comprehensive list of free resources to help you learn more about the topics of property investment.
03
Have a question?
Whether you have a question on a listing or one of our services, please reach out.
















